Puke Ariki, New Plymouth
It was a pleasure working closely with the team at Puke Ariki to transform their workspace into a modern, functional, and stylish environment.
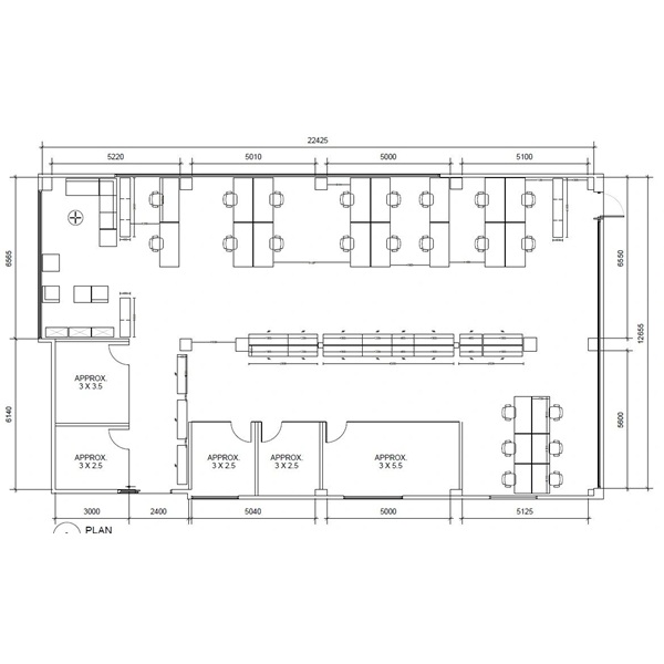
From concept to completion, seeing our design plans and renders come to life is always a rewarding part of what we do.
✅ Products supplied include:
Evolution 2 Electric Desks | Pinnacle Slimline Mobiles | Sonic Acoustic Partitions | Rapid Tambours | Kubix Shelving | Snug Soft Seating | Meeting Tables
Swipe through to see the completed install alongside the original floor plan!












